AG-Arch
Proyectos




TRANSFUNDIENDO EL SONIDO​
Este proyecto nace desde la necesidad de conexión con el entorno, en una relación de simbiosis. Con este proyecto se tratan los elementos del entorno desde un punto de vista único, el sonido que producen y la intensidad con la que vibran los elementos dentro del paisaje. La pieza resultante se entiende como un captador de sonido capaz de traducir los sonidos del entorno en sonidos programáticos. Aquellas actividades que requieren de mayor concentración y necesidad de silencio se han situado en las zonas donde se recogen los sonidos más suaves. El edificio se estructura por medio de “cajas sonoras”, actúan como estancias herméticas de las que no sale ni entra ningún tipo de sonido. Cada caja sonora obtiene una respuesta en forma de eco que se traduce como una alfombra de actividades complementarias a las realizadas en el interior.




HIVE​
Hive es un conjunto de espacios que cambien en función de sus potenciales usuarios y las necesidades de los mismos. Las formas surgen de la combinación de 3 hexágonos regulares que dan lugar a hexágonos no regulares pero de lados paralelos dos a dos capaces de crear un crecimiento ordenado. Existen 5 tipos de hexágonos según su altura, cada nivel sirve de apoyo al siguiente a modo de escalera. Se han utilizado cintas para conformar la privacidad de los espacios, de tal forma que las mallas más densas configuran los espacios más privados o protegen de la luz directa. Las zonas menos densas sirven para delimitar espacios o crear cambios de zona. El espacio propuesto es sólo uno de los muchos que se pueden crear, pues no hemos de olvidar que se trata de un sistema, no de un proyecto cerrado.




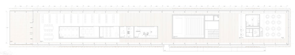
GAMONAL​
El proyecto de Gamonal aprovecha los vacíos físicos para dotarlo de los usos carentes en la zona, con el fin de revitalizar un barrio históricamente deprimido y reconvertirlo en una zona puntera y a la cabeza de la ciudad.
Pretende atrer a jóvenes y familias y volver a dotar la zona de vitalidad. Los tres puntos principales son las torres de vivienda densa, los bloques conectores de torres y los puntos singulares de dotaciones. Las viviendas son de tipo VPO debido al tipo de población al que van dirigidas y además son configurables con paneles móviles y extensibles hacia el exterior en función de las
necesidades de crecimiento de las familias.




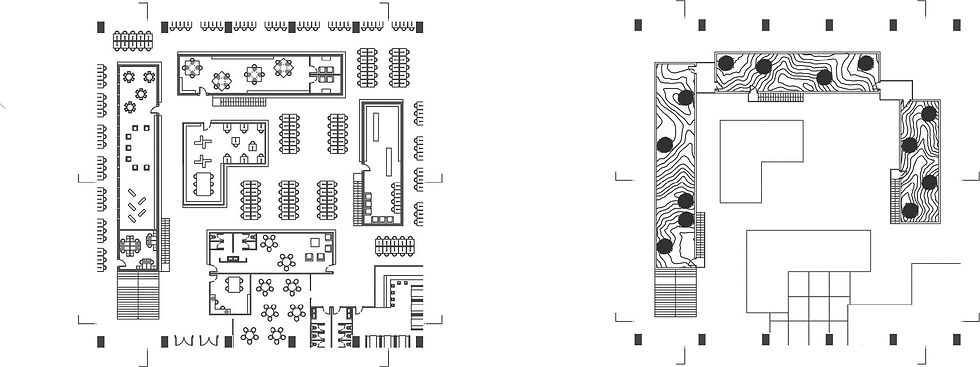
MAD-IN-RIO​
Mad - in - rio es un espacio híbrido que combina el alojamiento temporal para los artistas de Matadero que
así lo necesiten, con un palacio del agua, que consta de piscinas interiores y exteriores así como con espacios de ejercicio.
El edificio se estructura en una única planta articulada en brazos que siguen el trazado de las calles de la ciudad de Madrid.
Dichos brazos dejan entre sí unos jardines intersticiales temáticos, que varían en su tipología en función de su posición y uso. Estos jardines en ocasiones adquieren un carácter público sirviendo y dotando a la ciudad de
grandes zonas verdes.




BIBLIOUTÓPICA​
Biblioutópica es una tipología de biblioteca que se basa en el no-lugar, en la introspección.
Tomando esto como premisa, la biblioteca nace en una espiral hacia sí misma de la que van surgiendo las distintas necesidades y usos.
Su disposición en altura hacen del concepto de lectura un acto renovado capaz de llevarse a cabo en múltiples lugares, de donde surgen sus jardines en cubierta.
Sus grandes luces se resuelven con cerchas trianguladas metálicas a las que se adhiere una fachada y cubierta de vidrio con la finalidad de que la biblioteca se convierta en un paisaje para los que la rodean.